元居住用物件の強みを活かしたオフィス用の改装で収益性UP

施工情報
- 物件種別
- オフィス
- 築年数
- 20年~30年未満
- 間取り
- オフィス・店舗
- 面積
- 100㎡以上
- 構造
- 鉄骨造
不動産オーナー様の課題
自宅用に使用していた不動産を貸し出したい
INOVEのご提案
収益性を高めるため、居住用にリフォームではなく、オフィス用にリノベーションする
元居住用だからこそのキッチンや浴室部分を残すことで、希少性のあるオフィス物件にし、競合物件と差別化する
成果
費用:815万円
家賃:居住用での賃料想定(20万円)から190%アップの38万円で成約
募集期間:完工から6ヵ月
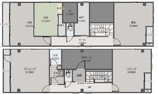
BEFORE

玄関やEVホールが中心にあるメゾネットタイプを居住用不動産としてお使いでした。
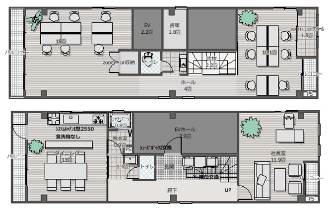
AFTER

洋室と続き間になっていた和室を洋室と合体させました。その他は、大幅には変更せず、大きく4つの空間に分けて使用できるように計画しました。
BEFORE

フローリング張りのダイニングには、吊戸棚があるキッチン、照明はキッチン用・ダイニング用とが分けて設置されていました。
AFTER

システムキッチン、照明をスポットライトに、靴で歩くことも想定して床はフロアタイル張りに変更することで、スタイリッシュな印象に仕上げました。
BEFORE

洋室は一般的なカーペット張りにシーリングライトが設置されてある状態でした。
AFTER

こちらも床はフロアタイル張り、照明は細長いタイプのLEDライトに変更しました。柱型のある狭いスペースをあえて緩やかに区切ることで、空間に変化をつけました。集中したい時の作業スペースや休憩コーナーとしてもお使いいただけるように計画しました。
BEFORE

洗面室には3面のミラーキャビネットが付いた洗面化粧台が設置されていました。
AFTER

既存の家庭的な雰囲気から、交換することでスタイリッシュな雰囲気に仕上げました。
BEFORE

昔ながらの味わいがあるユニットバスでした。
AFTER

全体のイメージにあうものに交換しました。
BEFORE

玄関には収納力のあるシューズボックスが設置されていました。
AFTER

オフィス利用を想定し、シューズボックスをとることで、玄関スペースの広さを確保しました。
BEFORE

木質系の階段でした。
AFTER

階段下の空間を室内に取り込むことで、広がりとデザイン性をもたせ、シャビーシックな空間を演出しました。
関連するリフォーム・リノベーション事例
同じカテゴリーの事例はありません